Casa à venda, Recanto Tropical, CASCAVEL - PR - Imobiliária Domo em Cascavel PR
Casa à venda, Recanto Tropical, CASCAVEL - PR
Ref.: 4863
2 Sala(s)
1 Cozinha(s)
4 Banheiro(s)
1 Lavabo(s)
3 Suíte(s)
Closet
3 Garagem Coberta
3 Garagem Descoberta
R$ 1.800.000,00

Descrição

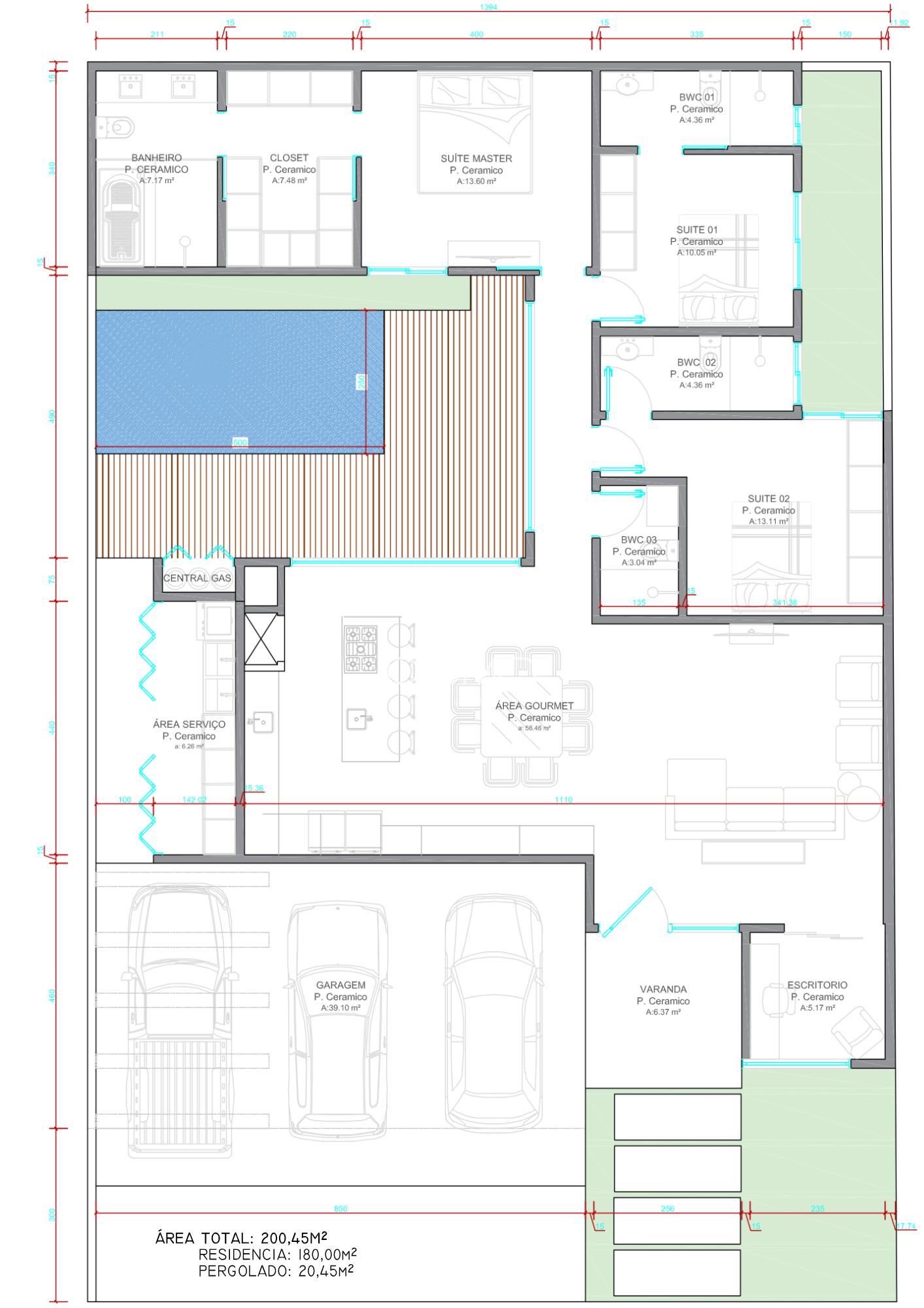
Casa térrea à venda no Recanto Tropical, em Cascavel – PR, com 204m² de área construída em terreno de 301m². O imóvel reúne elegância, conforto e alto padrão de acabamento em um dos bairros mais valorizados da região.

A residência conta com 3 suítes, sendo uma master com closet, sala de estar e jantar, lavabo, cozinha e um amplo espaço gourmet perfeito para receber. O projeto ainda inclui piscina, área de serviço e 6 vagas de garagem (3 cobertas e 3 descobertas).

Com portão eletrônico, interfone e terreno totalmente murado, a casa entrega privacidade e segurança. Ambientes bem distribuídos e excelente iluminação natural garantem praticidade no dia a dia.

Ideal para quem busca morar com qualidade, modernidade e conforto em bairro tranquilo e de fácil acesso.
Agende sua visita e conheça esse belíssimo imóvel no Recanto Tropical!

Características

Portão Eletrônico
Piscina
Interfone
Murado
Espaço Gourmet

Dimensões

204,00m² (m²) Ãrea Construída
301,00m² (m²) Ãrea do Terreno

Localização

Chamar no WhatsApp Agora!
Compartilhe